portfolio
RENOVATION APPARTEMENT 92 BOULOGNE DUNOIS
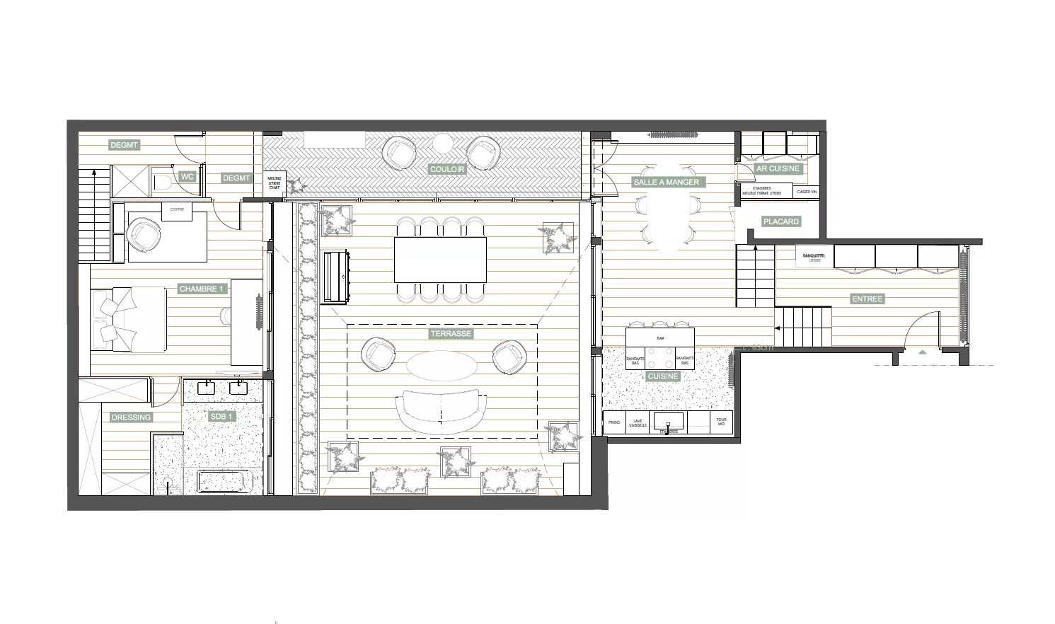
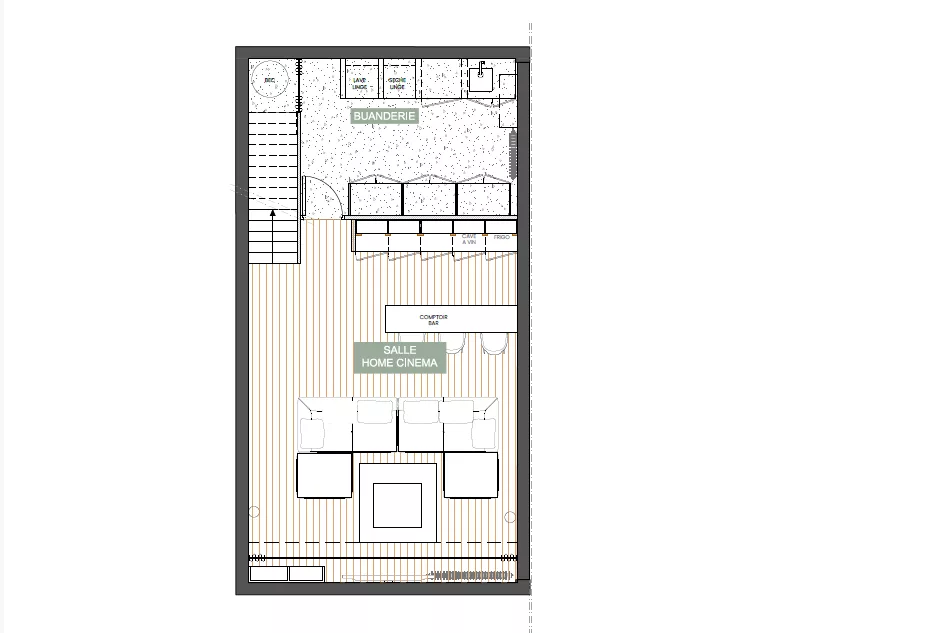
Cet appartement d’architecte de 200 m² au style industriel a été entièrement transformé en un lieu de vie chaleureux, coloré et cohérent. L’objectif : valoriser l’existant tout en repensant les usages et l’ambiance. Les espaces rénovés – salon, bureau, cuisine, chambres, couloir jardin d’hiver et salle de cinéma – ont bénéficié d’un travail précis sur les matières, les couleurs et la lumière. Le projet met à l’honneur la décoration : papiers peints, fresques panoramiques, mobilier généreux et élégant.
L’agencement sur mesure a été pensé comme un fil conducteur avec trois pièces fortes, toutes en noyer : un bureau intégré, une bibliothèque monumentale et un bar chaleureux dans la salle de projection.
Peinture, lumières, création d’une nouvelle cuisine, transformation des sols : chaque détail contribue à une ambiance plus douce, naturelle et vivante.
Une rénovation qui redonne à cet appartement son caractère unique, en conciliant design, fonctionnalité et convivialité.


























