portfolio
AMENAGEMENT ET DECORATION D’UNE SUITE PARENTALE
COURBEVOIE LAMBRECHTS
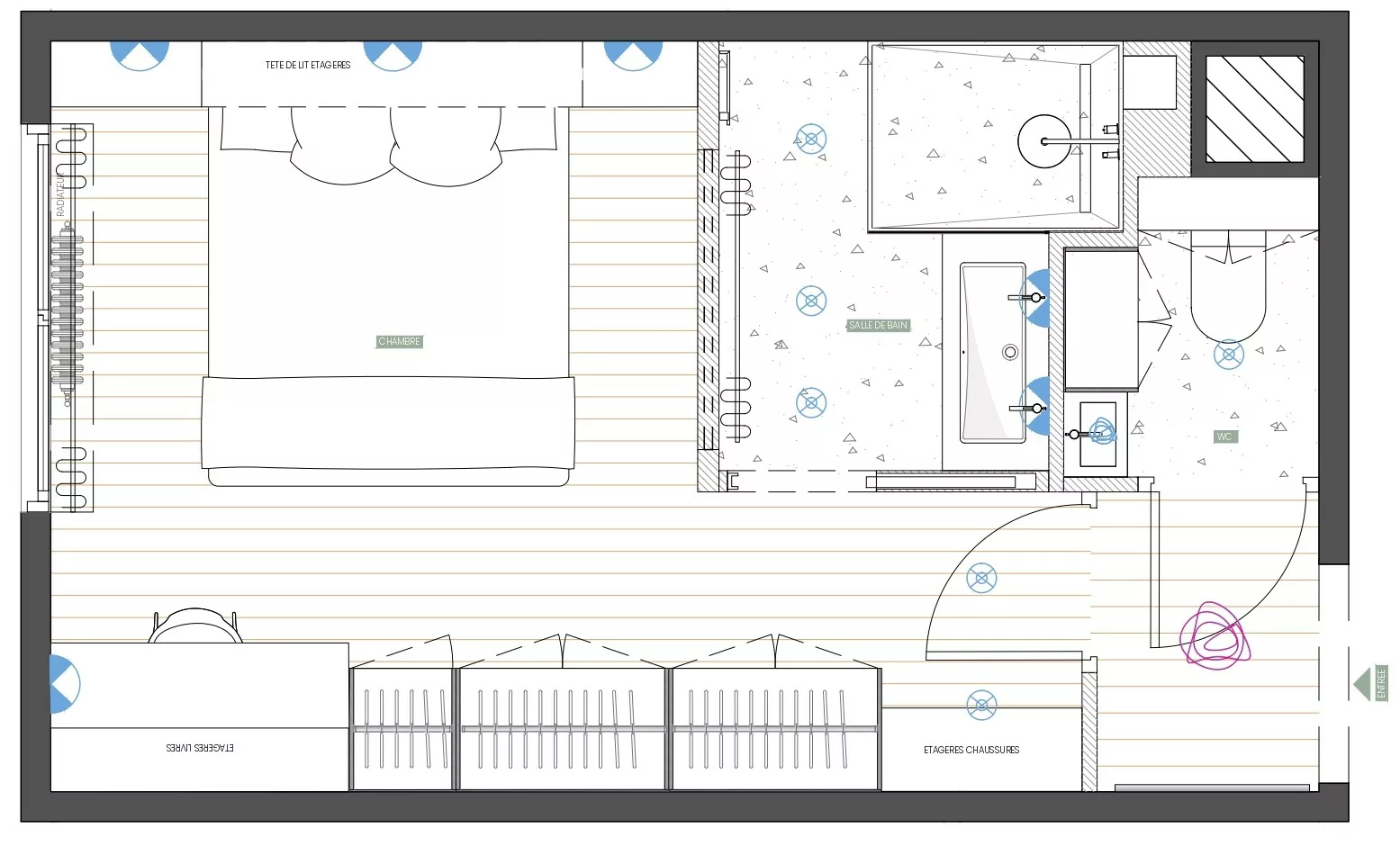
Ils rêvaient d’un refuge intime, élégant et apaisant. Notre mission d’architecture d’intérieur et de décoration pour cette suite parentale a consisté à transformer 25 m² ordinaires en un véritable cocon de confort et de douceur, sans rien céder au style et aux possibilités de rangement.
Nous avons repensé chaque mètre carré pour créer une suite complète : un espace nuit enveloppant avec tête de lit et un grand dressing sur mesure, un coin bureau discret, une salle de bain lumineuse avec
double vasque et douche à l’italienne, ainsi que des WC séparés. Les solutions techniques – porte à galandage, chauffe-eau extra-plat, verrière avec store – optimisent l’espace. Les matériaux nobles, les finitions cuivre, la pierre et les lignes arrondies signent une atmosphère chaleureuse, raffinée et profondément personnelle. Les choix de couleurs beige et rosé, les éléments de décoration comme les luminaires et les tissus ont été choisis dans la continuité de ce cocon de douceur et de chaleur.












